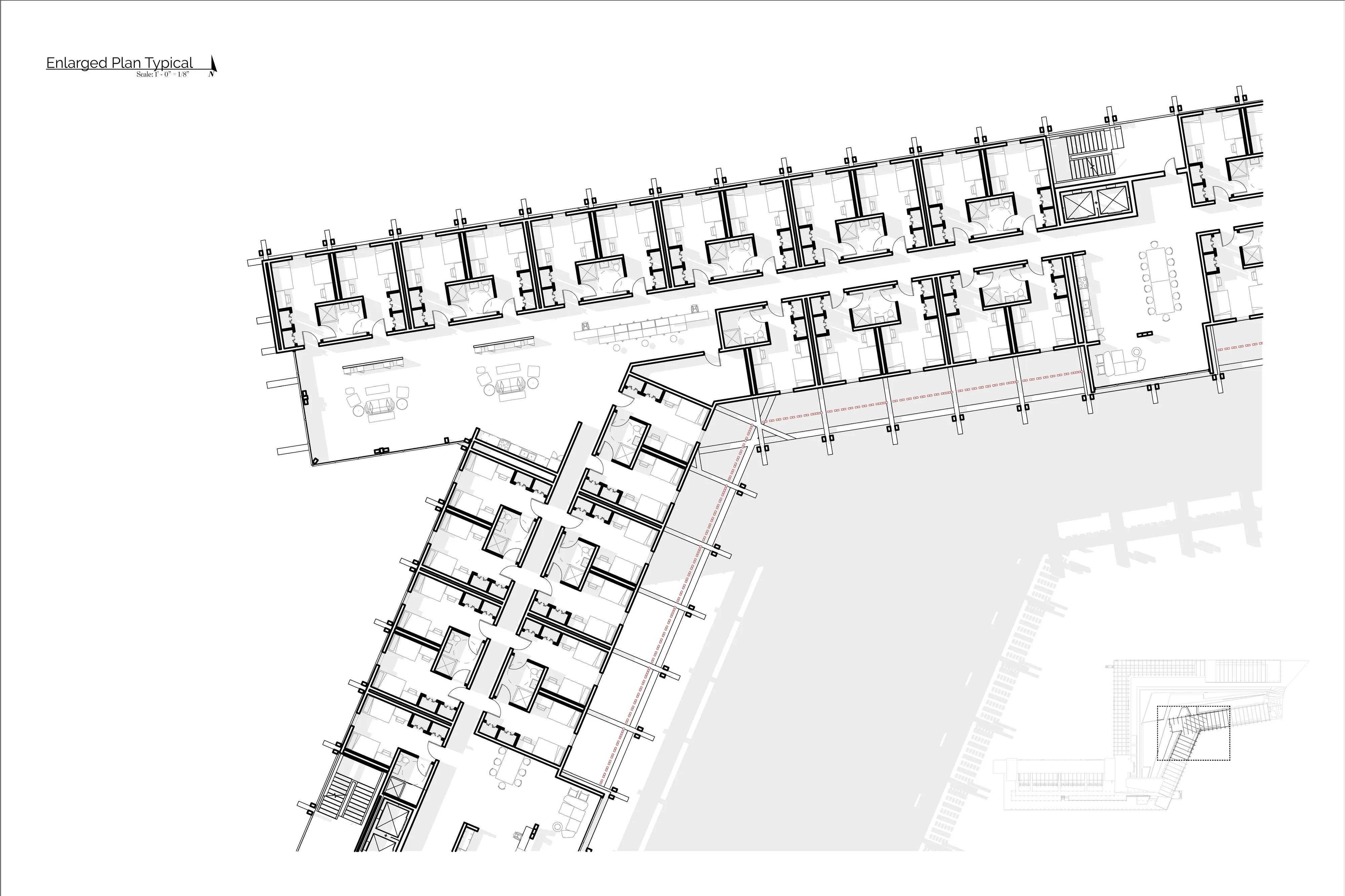
University of Florida Dormitory Proposal

Size: 700,000 sq ft Duration: 15 weeks
Projects

Architects, by virtue of their role, must design not only for the client who commissions the work but also for the broader community who will inevitably encounter and inhabit it. Architecture’s purpose extends far beyond serving a single client or expressing a stylistic preference. It’s true power lies in shaping the spaces we share, and with that comes a responsibility to design for the broader public good.