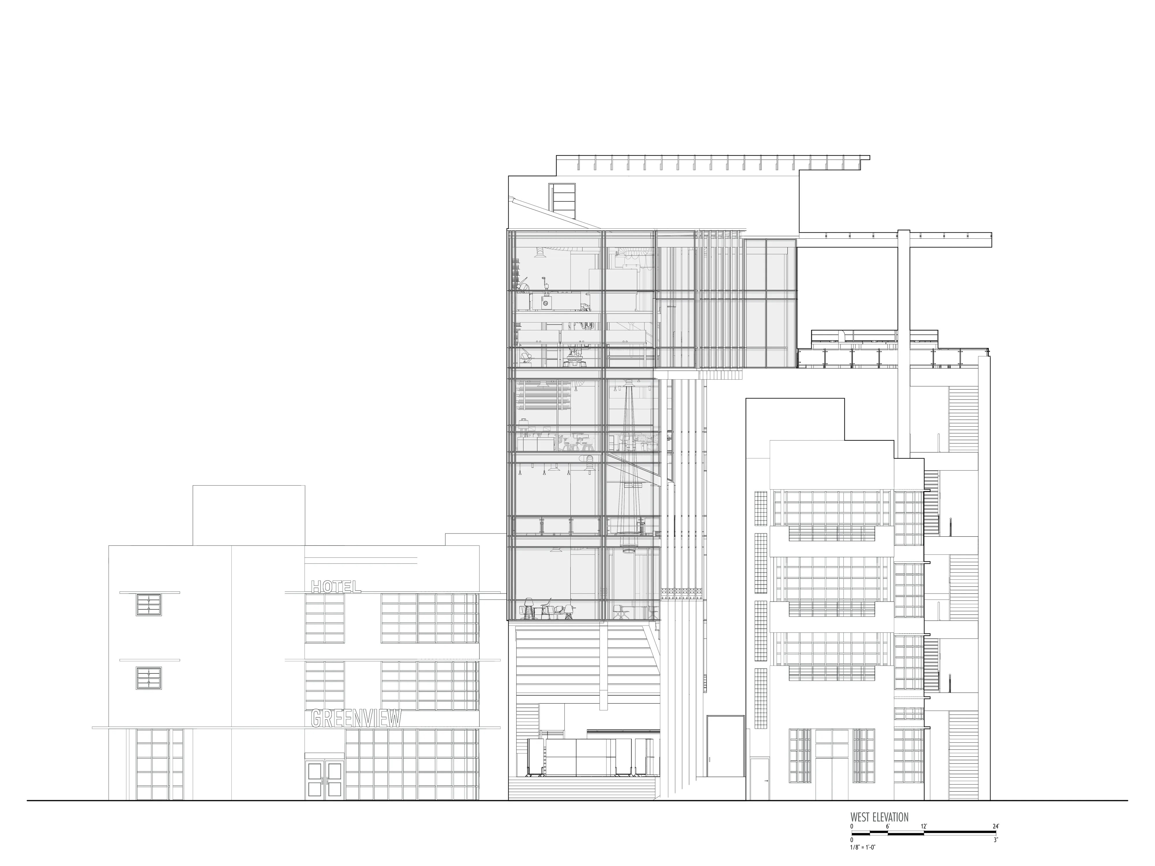
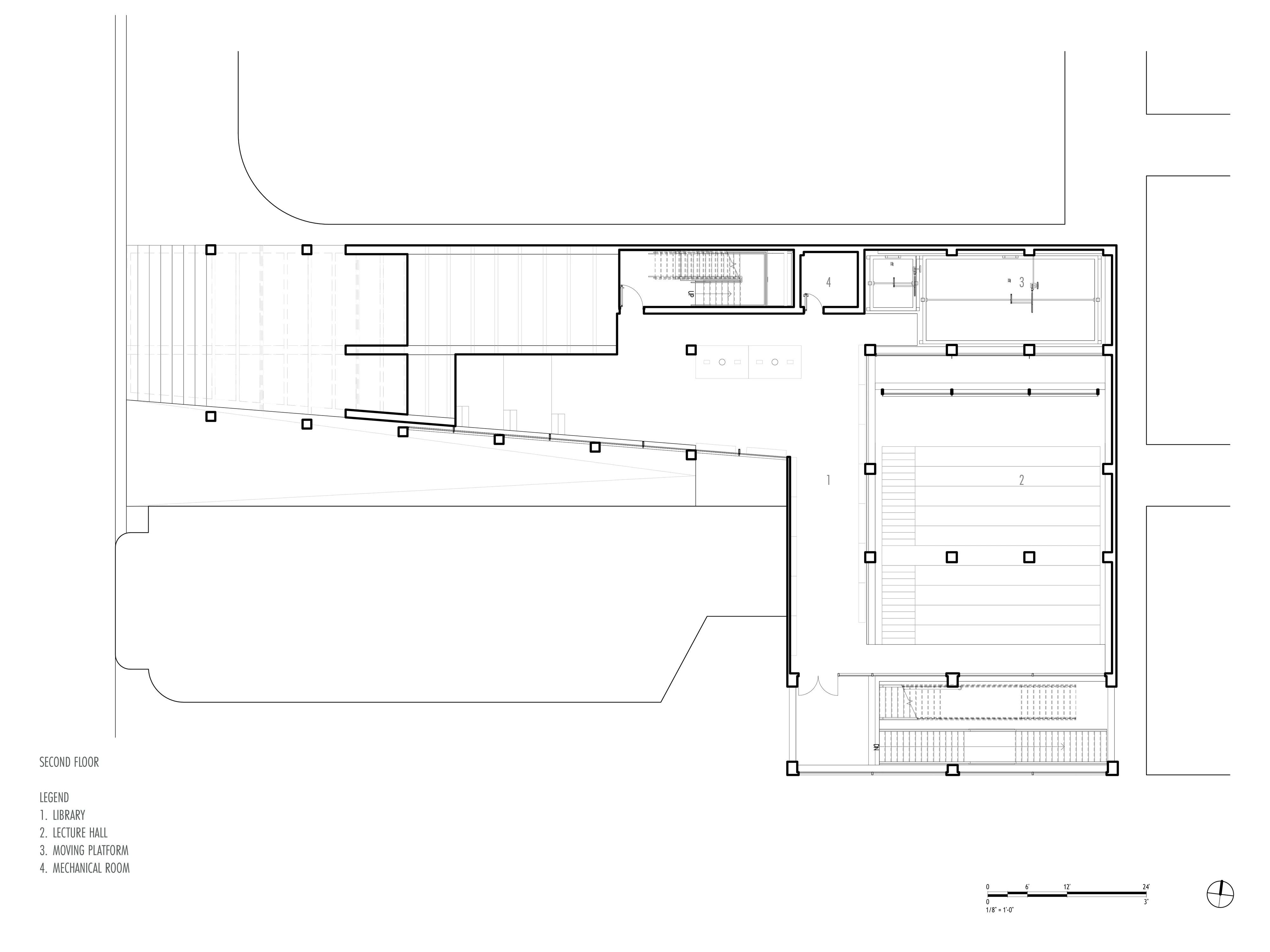
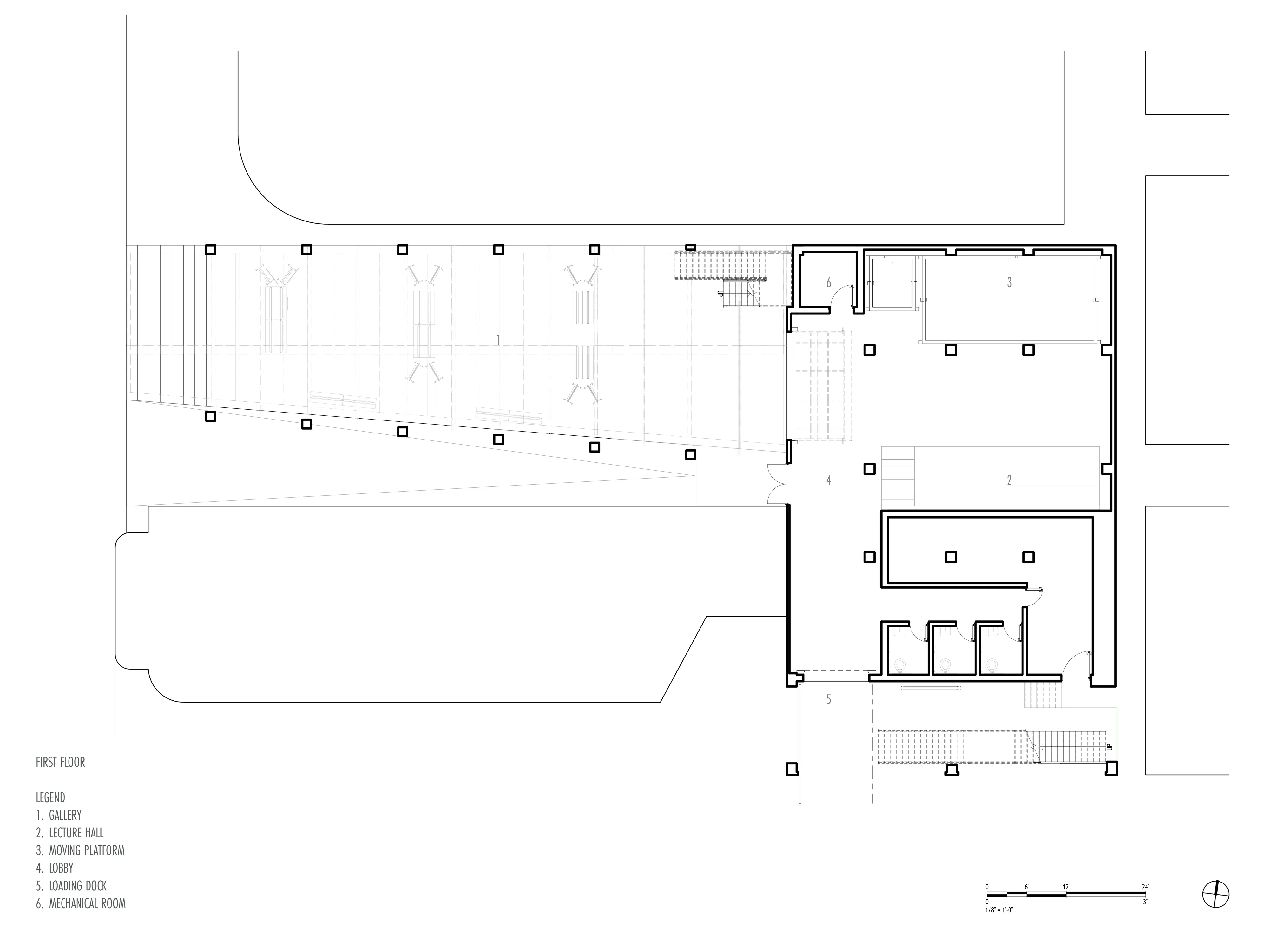
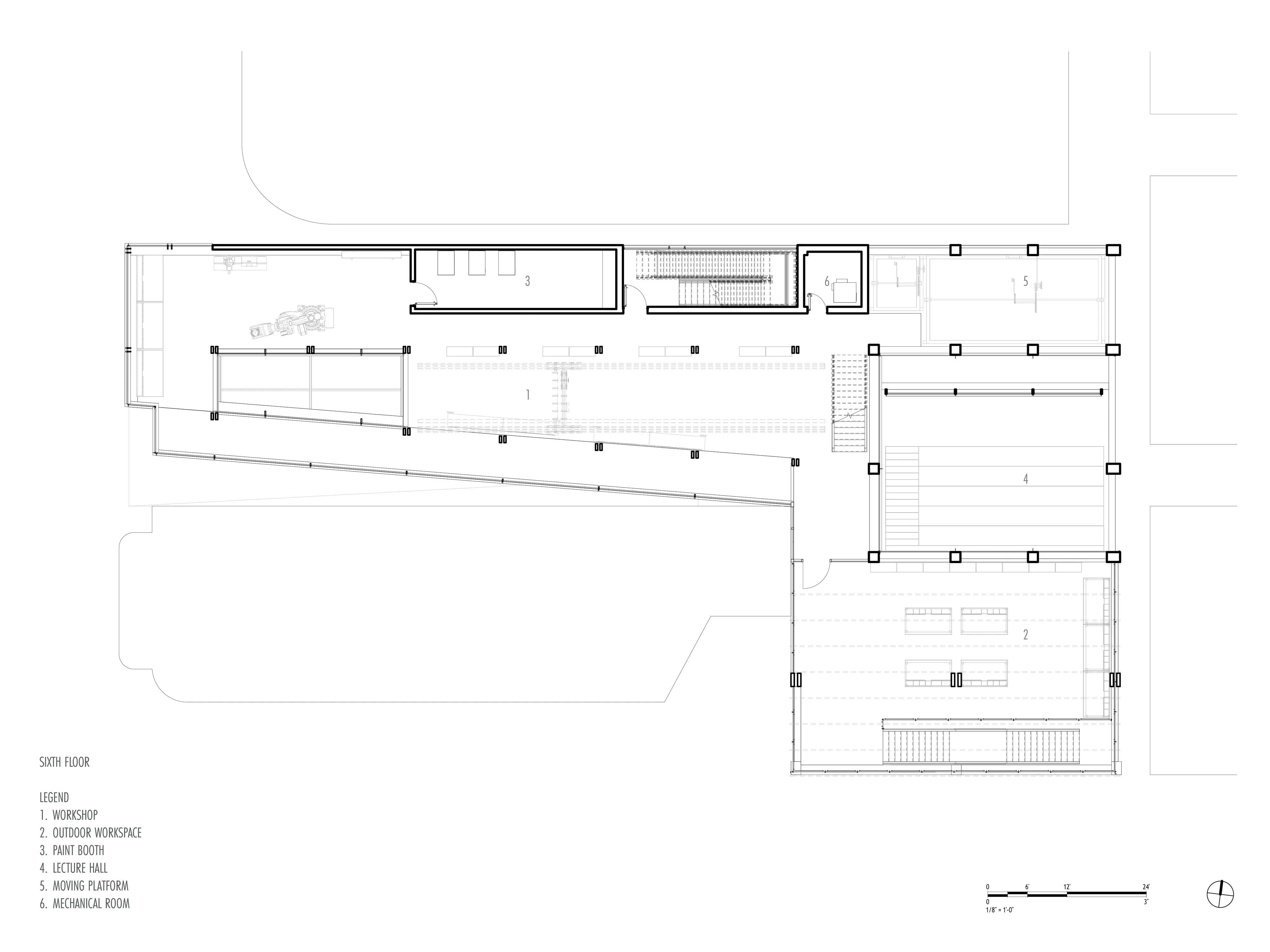
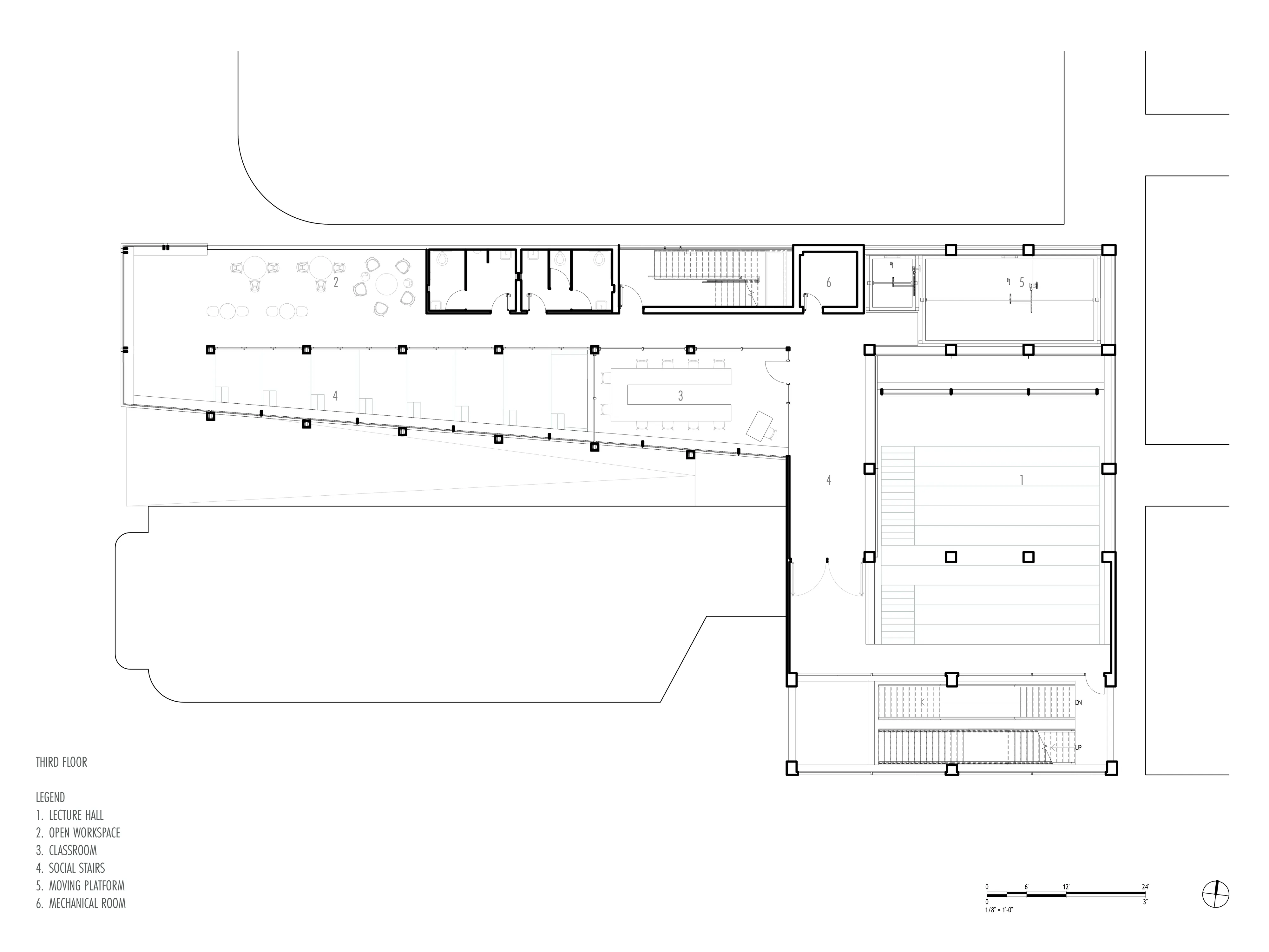
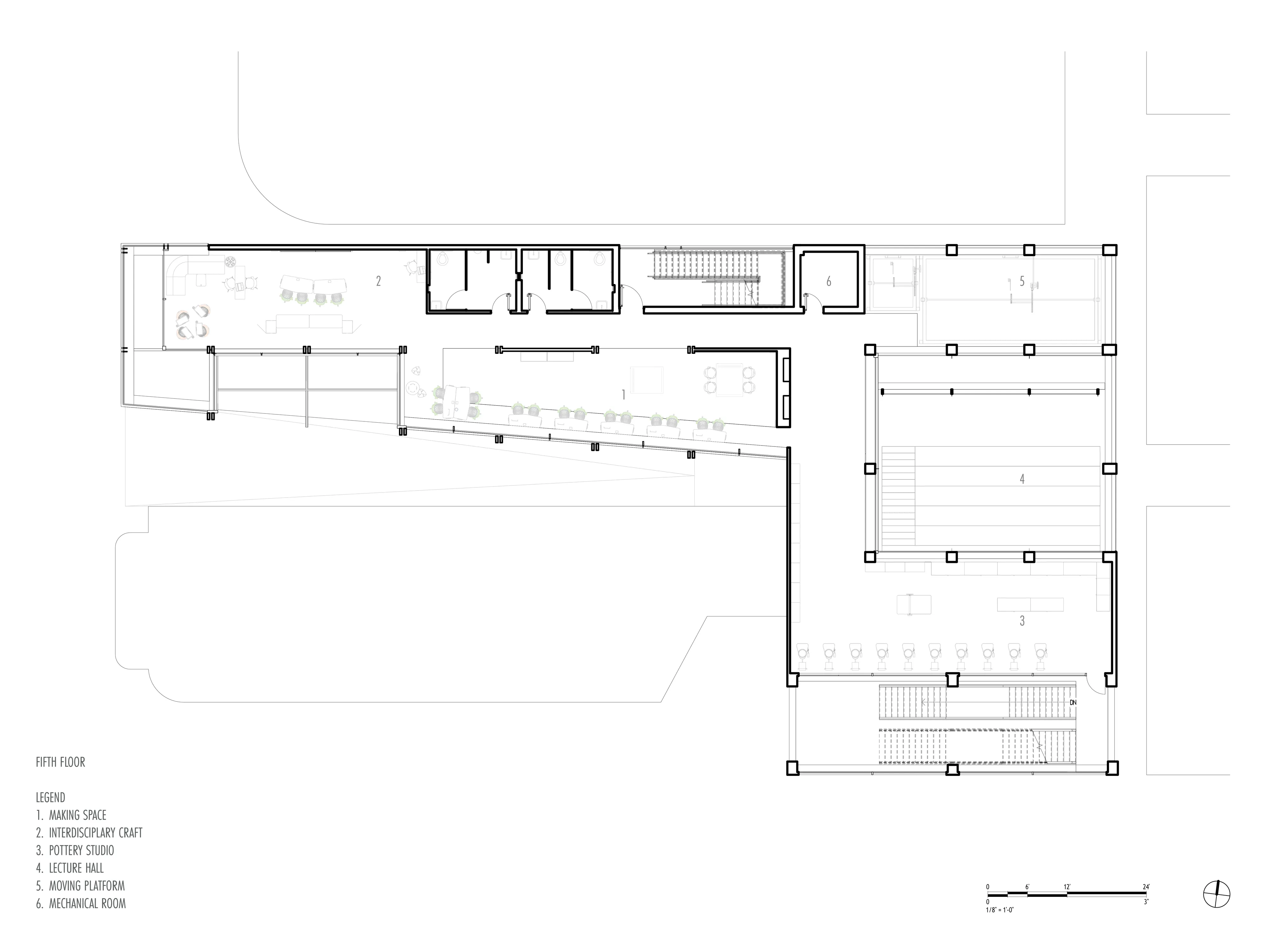
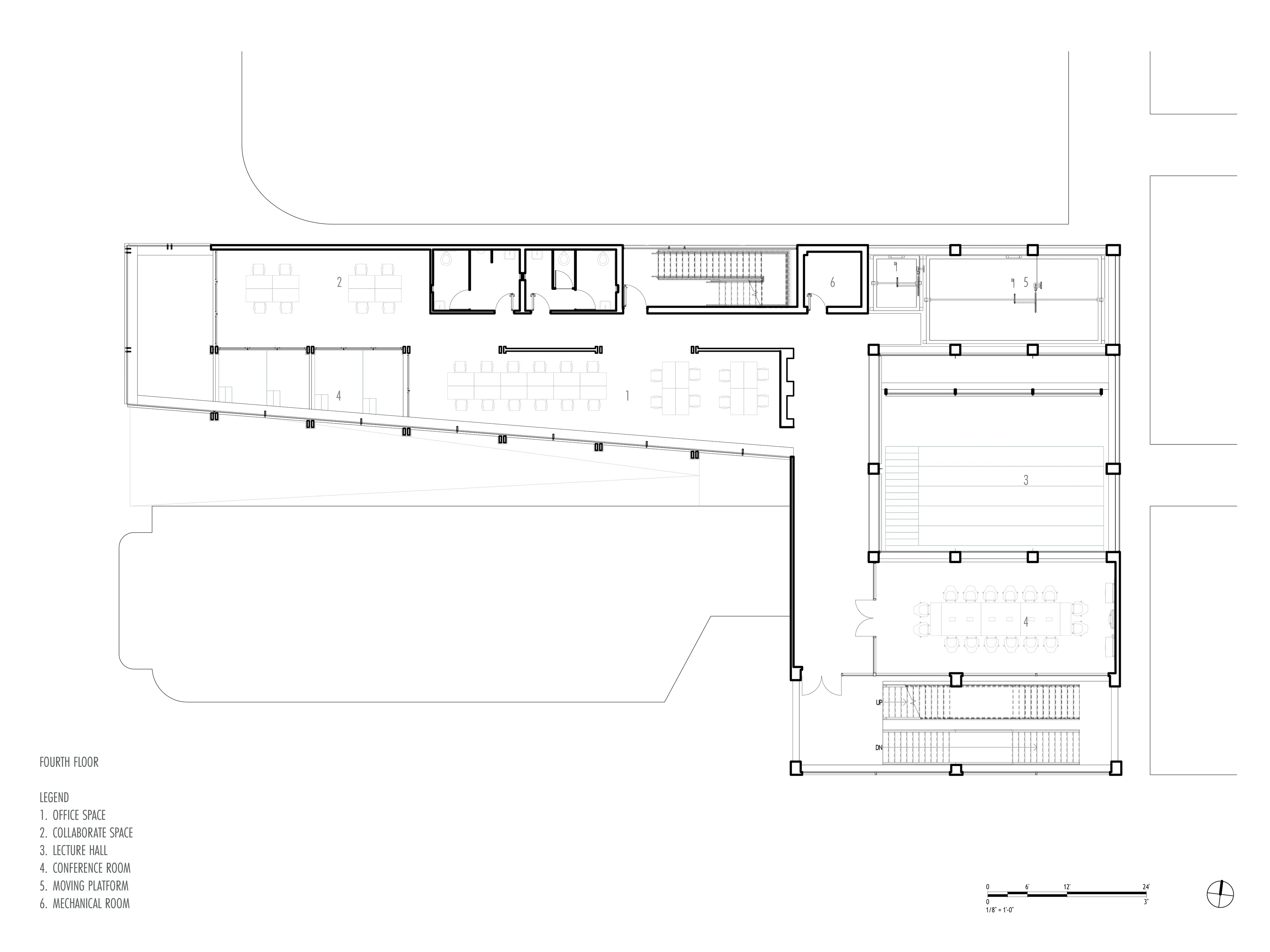
Miami Center For Design Research

Size: 28,000 sq ft Duration: 10 weeks
Projects

Up until now there have only been partically mass timber buildings built in Miami and Miami beach. With the completion of our Mass Timber Fabrication shop it would represent the first totally mass timber structure completed in the region. This would serve as a pioneering example that would help to shift the building practices in the region towards more sustainable and innovative solutions.