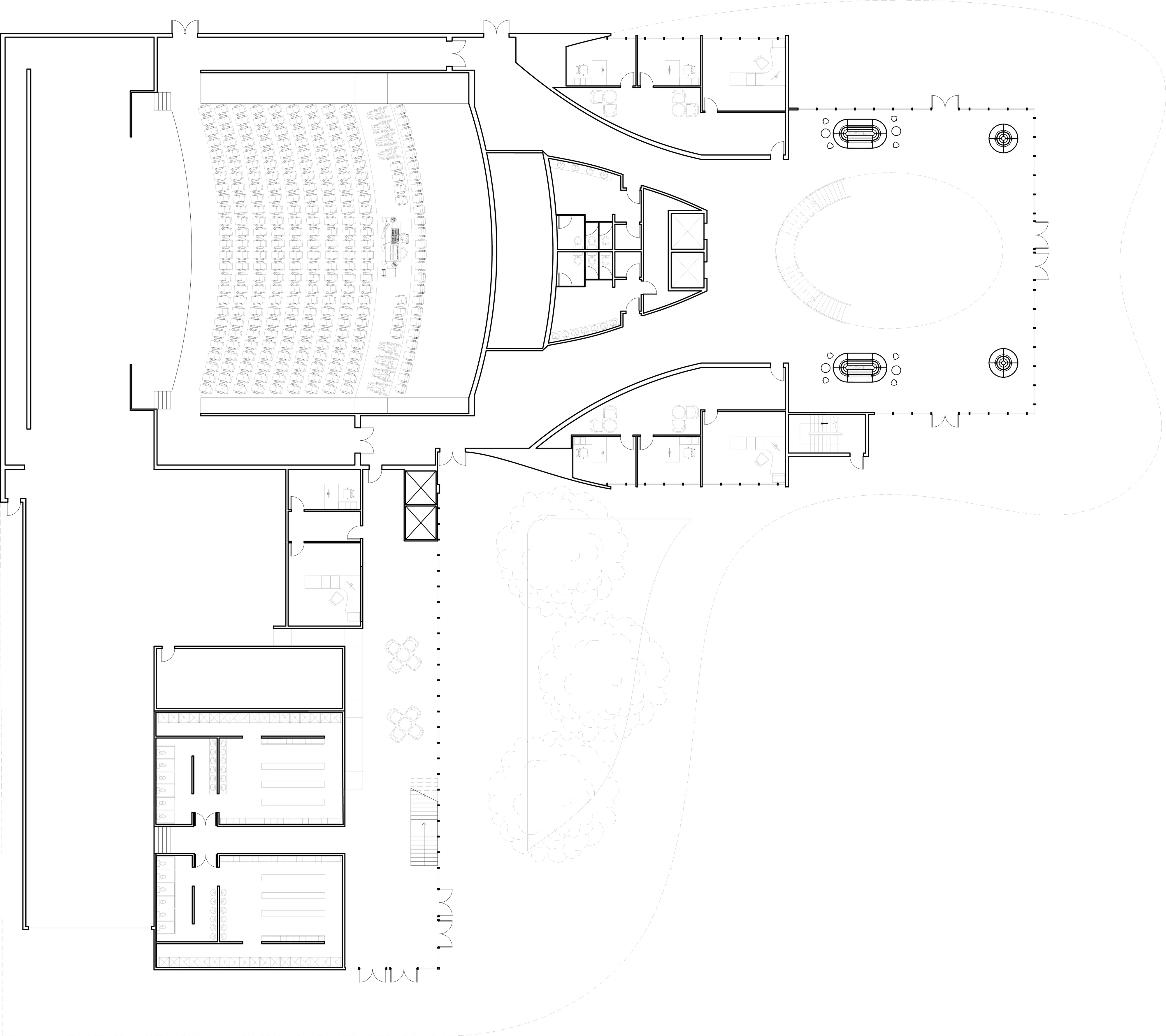
Lake Eola Performing Arts Center

Size: 60,000 sq ft Duration: 8 weeks
Projects

Facing Lake Eola, this Performing Arts Center is designed to mimic the expression of art and music through its impressionistic curves. It is intended to house both impromptu and scheduled events, seeking to become a landmark destination for the arts in downtown Orlando.